美粧堂ビル 4F 4階
初期費用シミュレーションこの物件を借りた場合の初期費用の一例です。
- 賃料
- 管理費・共益費
- 敷金:
- 礼金
- 前家賃(日割り) ※1
-
- 前家賃(日割り)
- 仲介手数料 ※2
- その他費用
- 合計
※1. 1か月を30日として計算しています。
※2. 仲介手数料は仮の価格となりますので、実際の価格に関してはお気軽にお問い合わせ下さい。
物件概要
【アパート】 物件番号:98135177 情報更新日:2025年11月04日 次回更新予定日:2025年11月18日| 所在地 | 鳥取県鳥取市栄町610 | ||
|---|---|---|---|
| 交通 | |||
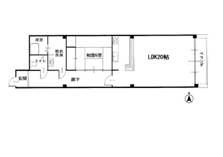
| 間取り/詳細 | 1LDK | 面積/バルコニー面積 | 92.40㎡/- |
| 賃料 | 5.5万円 | 管理費・共益費 | - |
| 敷金/礼金/保証金 | 1ヶ月/1ヶ月/- | 償却/敷引 | -/- |
| 更新料 | - | 敷金積み増し | - |
| 権利金/雑費 | -/- | 駐車場/月額料金 | -/- |
| 保険加入/料金 | 有/- | 保険名/保険期間 | -/- |
| 保証人代行義務 | - | 保証会社 | 日本セーフティー |
| 保証会社詳細 | - | 向き | - |
| 築年月(築年数) | 1979年 2月 (築46年) | 契約期間 | 2年 |
| 種別/構造 | アパート/鉄筋コンクリート | 部屋/所在階/階建 | 4F/ 4階/ 4階建 |
| 総戸数 | - | 現況/入居可能日 | 空家/相談 |
| 特優賃 | - | 取引態様/賃貸区分 | 一般媒介/一般 |
| 物件番号 | 98135177 | 取引条件の有効期限 | 2025年11月18日 |
| 設備条件 |
|
||
| 取扱会社 |
|
||
※地図上に表示される物件の位置は付近住所に所在することを表すものであり、実際の物件所在地とは異なる場合がございます。















