安井宿(工場・倉庫)
緑地・環境施設についての基準は、原則以下のとおりとなります。
敷地面積に対する緑地面積の割合が20%以上であること
敷地面積に対する環境施設面積(緑地面積を含む)の割合が25%以上であること
ローンシミュレーションこの物件を購入した場合の、月々の支払い価格の一例です。借り入れを保証するものではございません。
- 返済期間
-
- 金利
-
- ボーナス時の増額(1回分)
-
- 借入金額:
-
- 頭金:
-

- 毎月の返済額:
(※元利均等方式 金利5.00%まで ※返済年数5~50年まで入力できます)
(※ボーナスは年2回で計算しています。1000万円まで入力できます)
(※物件購入時、その他諸費用が発生する場合がございます)
物件概要
【工場】 物件番号:69489334 情報更新日:2026年04月09日 次回更新予定日:2026年04月23日| 所在地 | 鳥取県八頭郡八頭町安井宿1333 | ||
|---|---|---|---|
| 交通 | |||
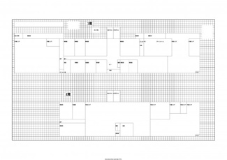
| 間取り/詳細 |
- 建物は上記以外に、車庫45.50㎡と平成4年増築の鉄骨造974.64㎡あり(未登記)。 |
建物面積(坪数) | 3208.23㎡(970.48坪) |
| 価格 | 2億2,000万円 | 管理費 | - |
| 駐車場/月額料金 | -/- | ||
| 土地権利 | 所有権 | 土地面積(坪数) | 16352.95㎡(4946.76坪) |
| 国土法届出要否 | 不要 | 接道状況 | 角地(西 公道) |
| 地目/地勢 | 宅地/平坦 | 棟総戸数/販売戸数 | -/- |
| 都市計画 | 非線引区域 | 用途地域 | 無指定 |
| 建ぺい率 | - | 容積率 | - |
| その他の法令上の制限 | - | ||
| 種別/構造 | 工場/鉄骨造 | 向き | - |
| 築年月(築年数) | 1987年 11月 (築38年) | 所在階/階建 | -/- |
| 管理組合有無 | - | 管理形態 | - |
| 管理員の勤務形態 | - | 管理会社 | - |
| 取引態様 | 専任媒介 | 現況/引渡し | 空家/相談 |
| 物件番号 | 69489334 | 取引条件の有効期限 | 2026年04月23日 |
| 設備条件 |
|
||
| 取扱会社 |
|
||
※地図上に表示される物件の位置は付近住所に所在することを表すものであり、実際の物件所在地とは異なる場合がございます。















